Highlands 372Q by Coral Homes

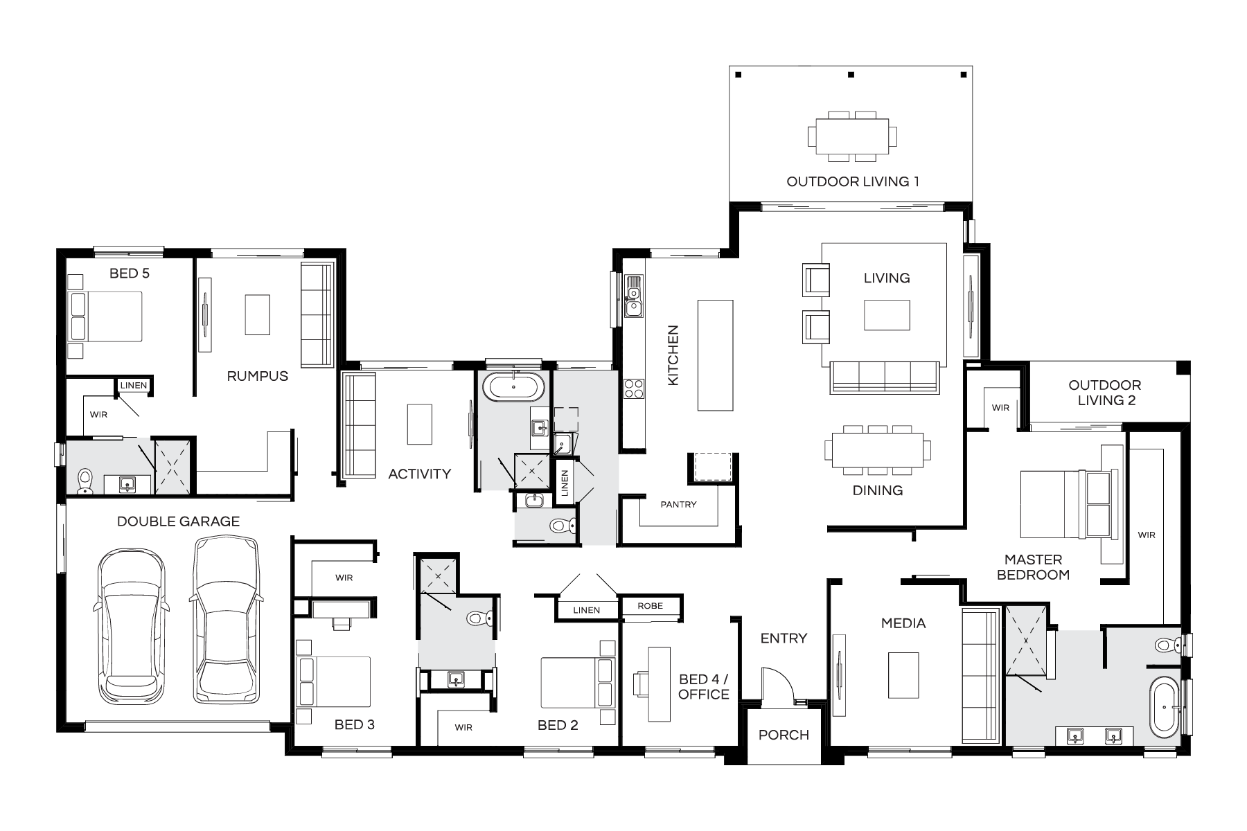
The Highlands 372Q is a spacious single-story home designed for wider blocks, featuring an elegant Alpine Facade and a classic monochrome palette softened by warm neutrals and layered textures, balancing refinement with comfort. A key feature is the exclusive retreat, ideal for multigenerational living or guests, which includes a private bedroom, ensuite, kitchenette, and living area, offering a self-contained sanctuary. The home also boasts an additional three main living spaces and a generous alfresco area, seamlessly blending indoor and outdoor living to create a modern acreage experience.

Visit our the The Fairways Sales Office for more information or enquire to book an inspection!

Opening Hours

Monday:       10am – 5pm

Tuesday:      10am – 5pm

Wednesday: 10am – 5pm

Thursday:     Closed

Friday:          Closed

Saturday:      10am – 5pm

Sunday:        10am – 5pm

Make an enquiry

Kensington Grove Land Sales Centre
1 Stirling Drive, Kensington Grove QLD 4341
07 3874 0074

Opening Hours

Monday - Sunday:
8:30am - 5:00pm

"*" indicates required fields

Floorplan

Features

5 bedrooms
4 bathrooms
4 living areas
2 car garage

Dimensions

372.07m2 Floor Area (sqm)
3132m2 Land Size (sqm)
floorplan

7 Stirling Dr, Kensington Grove QLD, Australia

Latest News

QM News – September

QM News – August

QM News – June

Benefits of Living in Masterplanned Communities

QM News – May